
Twoja Nowa Bezpieczna Przystań do Życia. Chorzenice, ul. Nowa
Nowoczesne domy w zabudowie bliźniaczej z prywatnym parkingiem i przestronnym salonem.
Kluczowe zalety
Wszystko, czego potrzebujesz do komfortowego, nowoczesnego życia
Układ bliźniaczy z centralnym garażem
Prywatny parking i niezależne wejścia do każdego domu
Parter z otwartą przestrzenią
Salon połączony z kuchnią w nowoczesnym stylu
Świetna, dobrze skomunikowana lokalizacja
Dająca spokój i bliskość przyrody
Możliwość wykończenia nieruchomości pod klucz
Wygoda w zasięgu ręki
Sprzedaż bezpośrednia od dewelopera — bez prowizji
Przejrzyste ceny i bezpośrednia komunikacja
Cena i standard wykonania
Wersja podstawowa – Stan surowy zamknięty (SSZ)
550 000 zł
mury, stropy i dach
okna oraz elewacja
bramy i ogrodzenie
wylewki wewnętrzne
podłączenie podstawowych punktów wodno-kanalizacyjnych
przyłącze do sieci energetycznej
Opcje dodatkowe
Możliwość wykończenia pod klucz – zakres i cena do indywidualnego ustalenia.
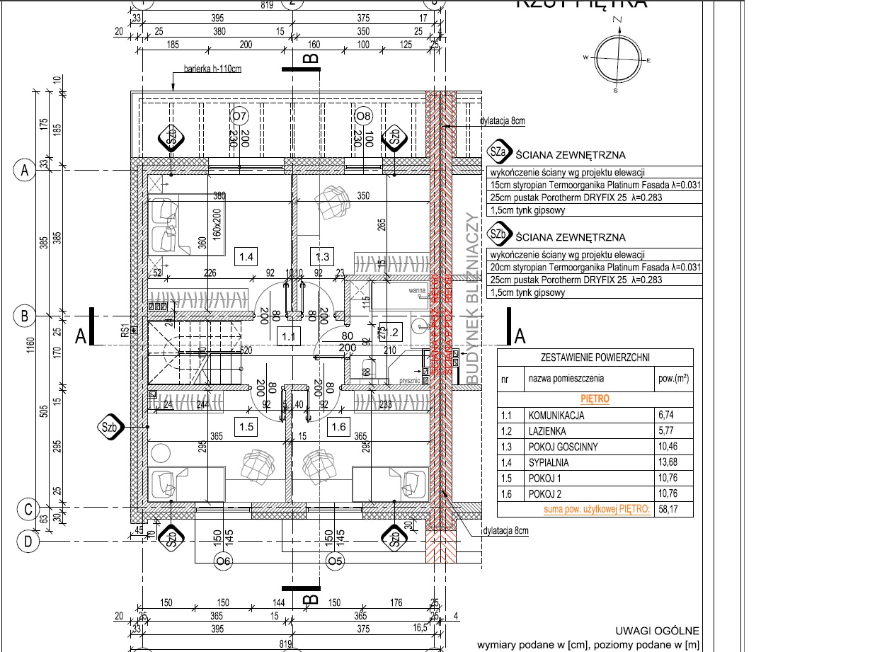
Rzuty mieszkań
Układ parteru to wydzielona część na garaż z wejściem do przedpokoju, kotłownią, WC, schodami oraz salonem z aneksem kuchennym. Górna część to cztery osobne pokoje oraz łazienka z WC.


Parter
| Komunikacja | 10,23 m² |
| Kotłownia/Pralnia | 5,01 m² |
| WC | 1,58 m² |
| Kuchnia | 8,74 m² |
| Salon | 17,92 m² |
| Suma pow. użytkowej Parter | 44,04 m² |
| Garaż (pow. pomocnicza) | 19,95 m² |
Piętro
| Komunikacja | 6,74 m² |
| Łazienka | 5,77 m² |
| Pokój gościnny | 10,46 m² |
| Sypialnia | 13,68 m² |
| Pokój 1 | 10,76 m² |
| Pokój 2 | 10,76 m² |
| Suma pow. użytkowej Piętro | 58,17 m² |
Łączna powierzchnia wszystkich pomieszczeń: 122,16 m²
Pełną specyfikację budynku udostępnimy po rozmowie z Klientem
Zarezerwuj swój dom
Ograniczona dostępność — zabezpiecz preferowany lokal już dziś
Wizualizacje
Nowoczesna architektura i komfort w otoczeniu zieleni – tak wygląda Twoja Nowa Residence.









Realizacje pod klucz

Łazienka wykończona pod klucz

Nowoczesna kuchnia

Elegancka łazienka

Nowoczesny salon z jadalnią

Minimalistyczna kuchnia

Stylowa kuchnia z wyspą

Elegancka łazienka pod klucz

Funkcjonalna łazienka
Marzysz o domu wykończonym pod klucz? Zrealizujemy to razem – umów się na spotkanie.
Lokalizacja
Chorzenice, ul. Nowa — spokojne otoczenie z szybkim dojazdem do miasta.
Dobra komunikacja z miastem
Zaledwie kilka minut jazdy do Częstochowy, wygodny dojazd do głównych tras.
Codzienna wygoda
Popularne sklepy takie jak Dino i Biedronka w zasięgu 5–10 minut.
Idealne dla rodzin
Rozwijająca się okolica w paśmie Jury Krakowsko-Częstochowskiej – spokój, przyroda i przestrzeń dla całej rodziny.
Harmonogram budowy
Zgodnie z planem ukończenia w Q2 2026
Prace ziemne
Ściany parteru
Stropy
Ściany piętra
Dach
Przygotowanie budynku pod SSZ
Wykończenie wnętrz wg ustaleń klienta
Prace ziemne
Ściany parteru
Stropy
Ściany piętra
Dach
Przygotowanie budynku pod SSZ
Wykończenie wnętrz wg ustaleń klienta
Najczęściej zadawane pytania
Wszystko, co musisz wiedzieć o Nowa Residence
Finanse
Dom i proces zakupu
Skontaktuj się z nami
Zadzwoń, napisz lub umów wizytę — jesteśmy do Twojej dyspozycji.
Telefon
+48 534 395 611
najmart@interia.pl
Kliknij, aby rozpocząć rozmowę
Godziny kontaktu
Poniedziałek – Piątek: 9:00 – 17:00
Sobota: Po umówieniu